Design

Kamo Marsh provides a fully integrated service, from the earliest design stages to the project management of construction, ensuring impeccable detail and workmanship throughout.
We ensure our clients are active participants and we understand the importance of communication throughout the design development process.
Below are the main stages of a 'typical' residential landscape design and construction. This may be followed in it's entirety – from Brief to Project Management or any stage may be completed on it’s own.
01
Client Brief
The first stage of any project requires the gathering of information. We meet with the client on site to determine their desired outcome in terms of style, budget and maintenance. From the brief we are able to supply a comprehensive design fee.

02
Site Survey
To form the basis of the design the existing plans of the site and buildings are reviewed. If no existing plans are available a survey of boundaries, changes in levels, buildings, other structures, vegetation, service and views etc. would be carried out and a site plan then drawn up. The site survey is a fixed quote.
03
Concept Design
A concept design is drawn up to illustrate the overall vision of the design. It is presented as a preliminary draft and following client feedback it may be revised or fine-tuned until it reaches the approved concept plan stage. The concept design brings together all the elements of the brief as well as the ideas and creativity of the landscape architect and the opportunities of the site. The concept design is usually quoted as a fixed price
04
Planting Plan
Essentially part of the detailed design, the planting plans set out the exact location and species of trees, shrubs and herbaceous plants to be planted. This is essential for the maintenance and longivity of the plants. The planting plan is usually quoted as a fixed price.
05
Detailed Design
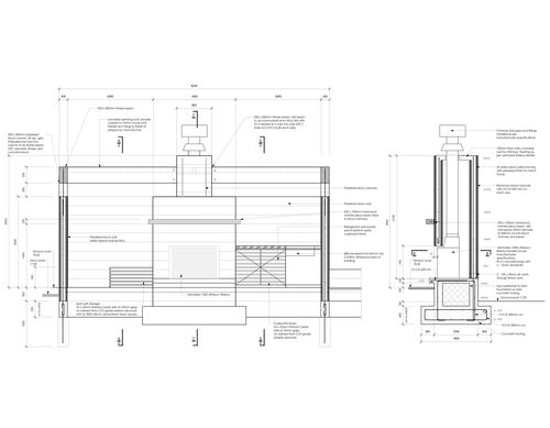
The detailed design plans elaborate on the concept design to communicate the finer details of the project to a contractor and allows the design to be accurately costed and built correctly.
They may include: drawings of earthworks, drainage, hard paved surfaces and various landscape structures, small buildings, swimming pools, walls, pergolas etc. These plans are also required by local authorities where consents may be necessary. Included are specifications which are the written documents that provide contractors with the scope of work to be undertaken and specific instructions relating to the various trades that will be involved. Insurances and Health and Safety considerations are also detailed.
The Detailed Design is usually quoted as a fixed price.
06
Tendering
On your behalf we are able to send the complete design and specifications to two or three reputable landscape contractors who we have previously worked with. They each provide an itemised quotation which we analyse, and give you our recommendation who to proceed with. This service is charged at an hourly rate.
Project Management
During the build of your new garden we are also able to oversee all work, visit on site, communicate with the contractor throughout the build, make sure all workmanship is up to our high standards and deadlines are being met. This service is charged at an hourly rate.

















.jpg)


_flip.jpg)































